Hướng dẫn AutoCAD 3D cơ bản
Home
KIẾN THỨC
BÀI TẬP
TÀI LIỆU
Trang chủ
PHẦN 3 - BÀI TẬP DỰNG MÔ HÌNH NHÀ 2D & 3D
PHẦN 3 - BÀI TẬP DỰNG MÔ HÌNH NHÀ 2D & 3D
by
you can design
07:41
BÀI 1: TẠO BẢN VẼ NHÀ VỚI DIỆN TÍCH (3.5m x 8m)
BÀI 2: TẠO BẢN VẼ NHÀ VỚI DIỆN TIÍCH (4m x 15m)
BÀI 3:
TẠO BẢN VẼ NHÀ VỚI DIỆN TÍCH (4m x 10m)
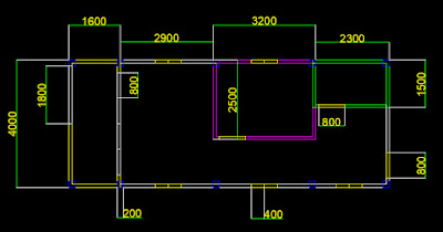
Bài 4: TẠO BẢN VẼ NHÀ VỚI DIỆN TÍCH (4m x 10m)
Social Plugin
Popular Posts
CÁC LỆNH VẼ HÌNH KHỐI 3D
09:55
CÁC LỆNH CẮT TRONG 3D
10:26
GHI CHÚ KÍCH THƯỚC CHO HÌNH KHỐI 3D
09:26
Subscribe Us
Facebook
Contact form